Koronavirové testovací centrum ELA Container

Potřebujete další prostor pro testování pacientů na koronavirus? Pak se obraťte na nás. ELA Container Vám poskytne na vyžádání mobilní kontejnerová zařízení, např. k testování populace na nakažení virem. Již jsme zřídili některá „koronavirová testovací centra“ v našem domovském regionu a nabízíme naše kontejnery všem úřadům a zdravotnickým zařízením. Testovací centra můžete zřídit rychle, flexibilně a na jakémkoli místě.

Výhody
Oddělený vchod pro zaměstnance
Bezkontaktní zapnutí světel pomocí detektorů pohybu
Řízený pohyb osob
Ihned připraven k použití & rychle doručen
Lze jej postavit kamkoliv
Kontejnerové prostory ELA pro důvěrné rozhovory

Kontejnerové prostory ELA pro důvěrné rozhovory

Poradenské prostory ordinace musí zaručovat ochranu a důvěru - to je jediný způsob, jak vést otevřený a upřímný rozhovor mezi lékařem a pacientem. Proto ELA Container klade zvláštní důraz na příjemný pocit z prostoru v poradenských místnostech mobilních lékařských ordinací.

Více detailů
Kontejner ELA jako koronavirové testovací centrum

Kontejner ELA jako koronavirové testovací centrum

Na základě našich dosavadních zkušeností s dodáváním koronavirových testovacích center navrhujeme kontejnerové zařízení složené ze dvou kontejnerů ELA Premium. Na celkem 36 m² získáte všechny funkční podmínky, které potřebujete: Od různých funkčních místností až po hygienická zařízení, jako jsou toalety a umyvadla, až po kompletní klimatizaci.

Více detailů
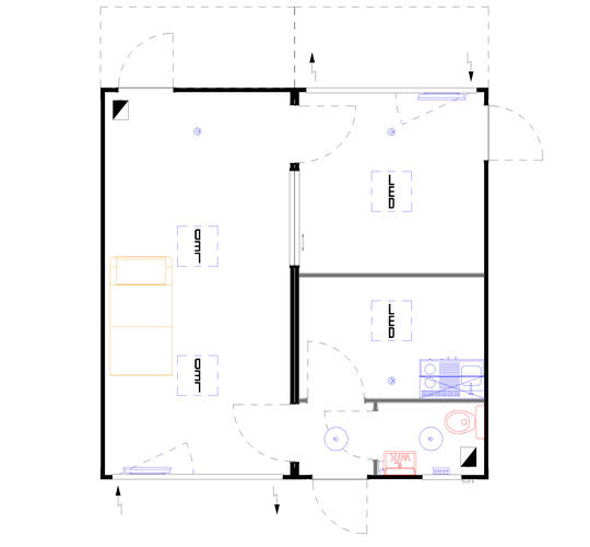
Praktický půdorys testovacího centra

Praktický půdorys testovacího centra

Půdorys kontejnerového zařízení je promyšlen tak, aby byl funkční a praktický. V zařízení je prostor pro celkem tři místnosti. Do vyšetřovny lze vstoupit a vystoupit ze speciálně zabudovaných dveří se zádveřím. K vyšetřovně přiléhá pracovní místnost pro odborný personál, která je od ní oddělena dveřmi. Než dojde k testování pacientů, musí se přihlásit u externí přepážky. Všechny místnosti mají samostatný vchod.

🔎 Zobrazit půdorys

Kontaktujte nás pro více informací. Rádi vám poradíme a připravíme pro vás individuální nabídku. 

 

Poptejte se hned

 

Technický list ke stažení

Hotline
Odborný poradce na místě